18586833311
0851-85622159
商店建筑-建筑防火及消防设施要求!
发布时间:2019-10-14
宿舍建筑-建筑防火及消防设施要求!
发布时间:2019-10-11
【免费赠送】价值800元10本精编珍藏版消防教材免费送!!!!..
各位朋友早上好! 有道是:花迎喜气皆知笑,鸟识欢心亦解歌。 正值祖国70周年华诞之际,为了分享这份喜悦。 消防资源网携手晓筑·老妖精给大家带来了一份豪华大礼,以此答谢各位新老粉丝长期..
发布时间:2019-10-10
住宅建筑-建筑防火及消防设施要求!
办公建筑-建筑防火及消防设施要求!
发布时间:2019-10-08
展览建筑-建筑防火及消防设施要求!
发布时间:2019-09-30
无管网气体灭火系统
有管网气体灭火系统
气体灭火的加压贮存方式
发布时间:2019-09-27
消防灭火钢瓶-定期检验和报废规定
发布时间:2019-09-26
托儿所、幼儿园-建筑防火与消防设施要求!
发布时间:2019-09-25
气体灭火系统-灭火剂分类
发布时间:2019-09-24
气体灭火报警联动控制系统视频演示
火灾发生时,非消防电源的切断区域、时间点及切断点!
发布时间:2019-09-20
民用建筑的库房-建筑防火要求
发布时间:2019-09-19
防火门-报警联动控制
发布时间:2019-09-18
人员密集场所的夹层部位,不应通过下部楼层疏散!
发布时间:2019-09-16
变频启动、软启动-消防水泵风机启动的宜与禁!
发布时间:2019-09-12
住宅小区及单位停车位-建筑防火间距的争议、探讨!
发布时间:2019-09-11
关于“禁止隐形消防车道和登高车场地”的规定,应予支持!
石峥嵘:多年的调研发现,基本很难保证隐形消防车道和隐形消防车登高操作场地的长期有效性!
发布时间:2019-09-10
袋形走道-概念及应用!
发布时间:2019-09-09
稳压泵流量不应小于泄漏量和系统自动启动流量!
石峥嵘:在部分自动灭火系统中,要求系统具备自动启动功能,不能完全依靠火灾自动报警联动控制系统启动。
怎样执行新版消防技术规范!
石峥嵘:新版消防技术规范,应参照“公消[2015]98号”文件的相关精神执行! “公消[2015]98号”文件发布于2015年4月27日,明确了《建筑设计防火规范》(GB 50016-2014)以及后续发布的其他新版消防技术规范的执行要求,原文摘录如下: ..
消防规范用词说明、黑体与非黑体条文区别及规则!
发布时间:2019-09-05
设备用房与汽车库-疏散关系及应用误区!
发布时间:2019-09-02
敞开楼梯间的基本概念,与敞开楼梯的区别及应用!
防火墙-从上至下均应处在同一轴线位置,附争议探讨!
发布时间:2019-08-31
规范争议-《建规》5.5.8图示的隐与忧!
发布时间:2019-08-29
层高受限的设备层、管道层-消防设施要求
发布时间:2019-08-28
汽车库设置防火卷帘,是否需要参照《建规》对应用长度进行限制?
争议由来:《建筑设计防火规范》6.5.3第1款对防火卷帘的应用长度进行了限制,那么汽车库设置防火卷帘时,是否需要参照此条款对应用长度进行限制?
发布时间:2019-08-27
难以完成的“泡沫-水喷淋”设计,处置方法,流程分解!
发布时间:2019-08-26
商业服务网点-相邻单元门窗洞口是否需要防火分隔措施?
石峥嵘:规范没有明确商业服务网点单元开口之间的防火分隔措施要求,应予重视,宜参照相关规定执行!关联文章:1、商业服务网点-建筑防火及消防设施要求!2、“迎火面·侧火面”&“防火间距”-怎样合理处置,灵活应用!
规范探讨-消防车道与建筑外墙的距离要求!
石峥嵘:规范要求“消防车道靠建筑外墙一侧的边缘距离建筑外墙不宜小于5m”,本条文用词为“不宜”,同时并没有约定最远距离,存在较大争议!
发布时间:2019-08-23
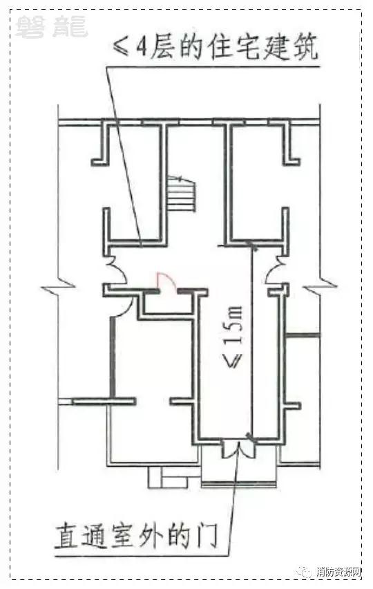
扩大封闭楼梯及前室直通室外的距离,及直通室外15米楼梯间形式的..
石峥嵘:针对楼梯间直通室外距离及楼梯间形式的争议,阐述观点如下,以供参考: 1、首层扩大前室直通室外的门与楼梯间的距离,“公消〔2018〕57号”和“公津建字【2015】27号” 文件并不矛盾,实际应用中,应协调处置! ..
应急照明疏散指示系统-回路灯具的连接方式!
发布时间:2019-08-20
局部消防验收-基本条件及相关措施要求!
石峥嵘:仅局部消防验收投入使用的项目,由于未验收部分可能存在功能缺陷,无法保证消防安全,甚至可能波及已验收部分,必须采取严格的防火防烟分隔措施,严加管理,并应在未验收部分配置基础消防设施。
发布时间:2019-08-19